The Place

overview

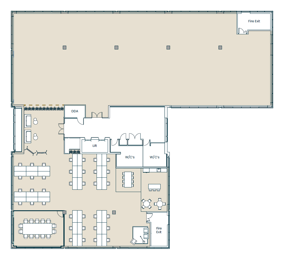
The Place, Maidenhead, is a contemporary office building designed to elevate your working environment. The newly refurbished reception welcomes staff and visitors into a bright and modern setting, while flexible fitted suites accommodate a variety of business needs. Tenants benefit from superfast broadband, a brand new climate control system, and fully accessible facilities. Communal spaces encourage collaboration, and on-site parking ensures a stress-free commute. The building provides an ideal balance between professional sophistication and everyday convenience.

Arrange a viewing

key points

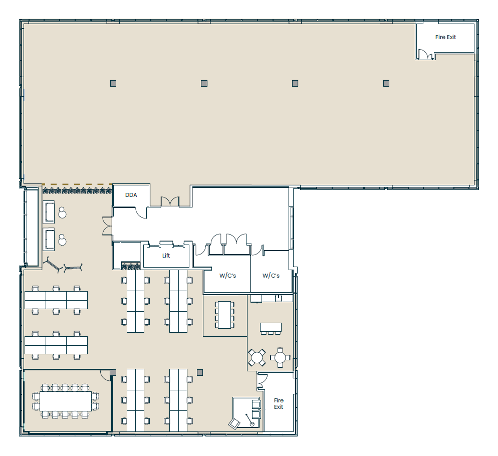
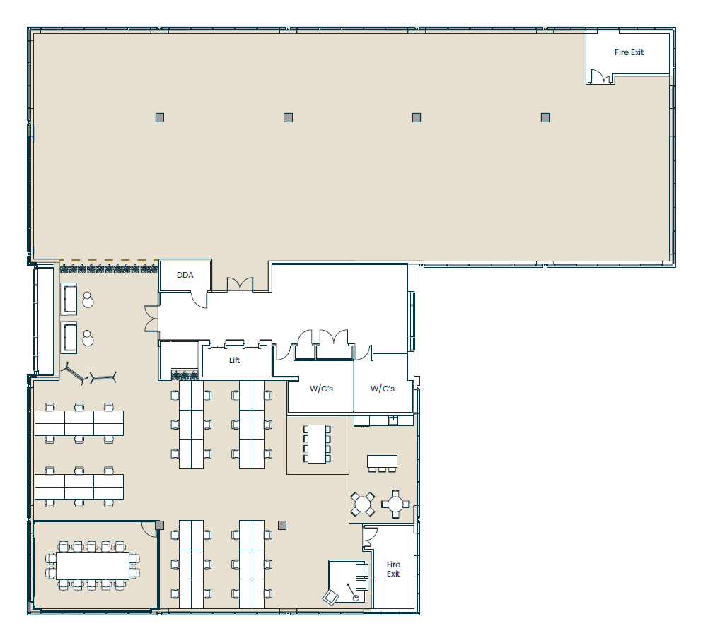
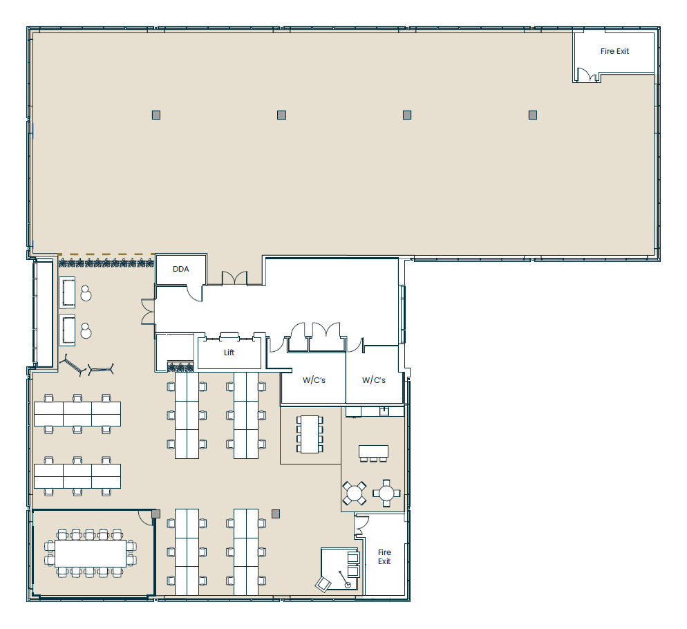
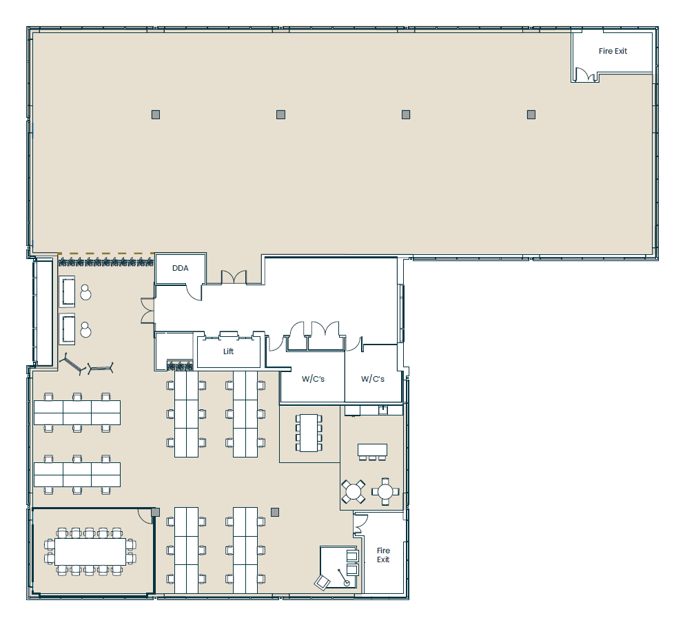
  • Fitted suites available from 3,500 to 8,664 sq ft
  • Newly refurbished reception area and contemporary design
  • Excellent transport connectivity – 8 mins walk to station, 5 mins to M4 J8/9
  • Fully accessible building with lift access
  • Superfast broadband and brand new climate control system
  • Kitchen, breakout, and meeting spaces provided
  • Secure cycle storage and 24-hour security monitoring
  • Close to shops, restaurants, and leisure amenities

accommodation

Floor/Unit
Use
Sq Ft
2nd
South
5,115
2nd
North
3,549
1st
South
4,225

location

The Place enjoys a prime position on Bridge Avenue, just off Maidenhead High Street, overlooking the Waterside Quarter and The Amphitheatre. The location offers unrivalled connectivity with the M4 (J8/9) just five minutes away and Maidenhead train station only an eight-minute walk, providing a direct link to London in 30 minutes. Heathrow Airport is within a 25-minute drive, making it ideal for business travel. The surrounding area features an array of shops, cafés, and leisure facilities, including David Lloyd Leisure and Coppa Club, creating a vibrant and convenient business hub.

360 tour

further information

contact
Arabella Macrae
 
Charlie Benn
downloads
Brochure Floor Plan

Hatch Real Estate
One Station Hill / Reading / RG1 1LN
///lucky.bids.bravo

0118 933 1303

hello@hatch-re.com

Cookie notice

We use cookies to enhance the user experience. Google analytics and Cookie bar.

Accept